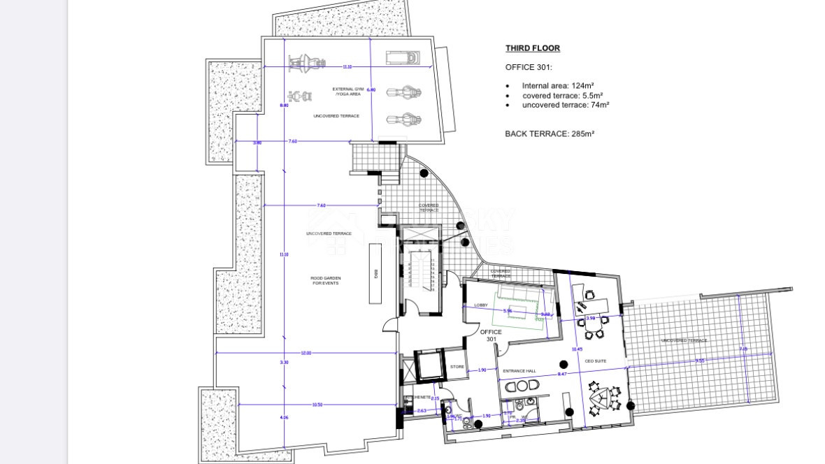
For rent: Modern office space of 124 m² on the top floor, accessible by elevator. This bright, welcoming office has been fully renovated in 2025 and offers a contemporary, energy-efficient environment (Energy Efficiency A). Enjoy impressive sea views from your workspace, providing a pleasant atmosphere for both clients and staff. The office is offered unfurnished, allowing you to customize the layout to suit your business needs.
Located in the vibrant city of Pafos, you are surrounded by a mix of commercial activity and cultural heritage. Pafos is well known for its lively business community, easy access to main roads, convenient amenities, and beautiful coastal scenery. The area balances modern development with historical charm, making it a sought-after spot for professionals and businesses.