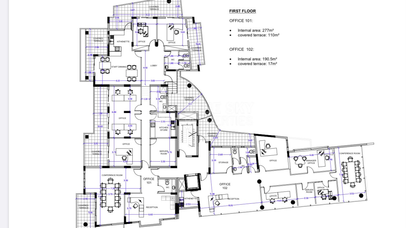
For rent: modern office space with a total area of 191 m2, conveniently located on the first floor. This office has just been renovated in 2025, reflecting the latest standards in design and comfort. With its energy efficiency rating of A, you benefit from lower operating costs and a comfortable working environment all year round.
The office is offered unfurnished, allowing you to customize the layout and furnishings according to your business needs. Its spacious open-plan layout provides flexibility for workstations, meeting areas, or a reception. Large windows let in ample natural light, creating a bright and productive atmosphere.
Situated in Pafos, a vibrant business and cultural hub, you will find excellent amenities, cafes, banks, and public transport close by. The area is well known for its historical landmarks, beautiful coastline, and dynamic community, making it an attractive spot for both local and international businesses.