An architectural masterpiece of exceptional quality, this ultra-luxury 5-bedroom villa is set on a prestigious 750 m² plot, offering expansive proportions, refined design, and an uncompromising standard of living. Designed for discerning buyers, the residence delivers a seamless fusion of contemporary elegance, privacy, and functionality.
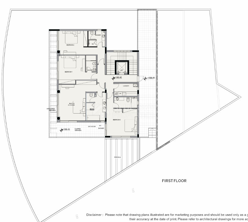
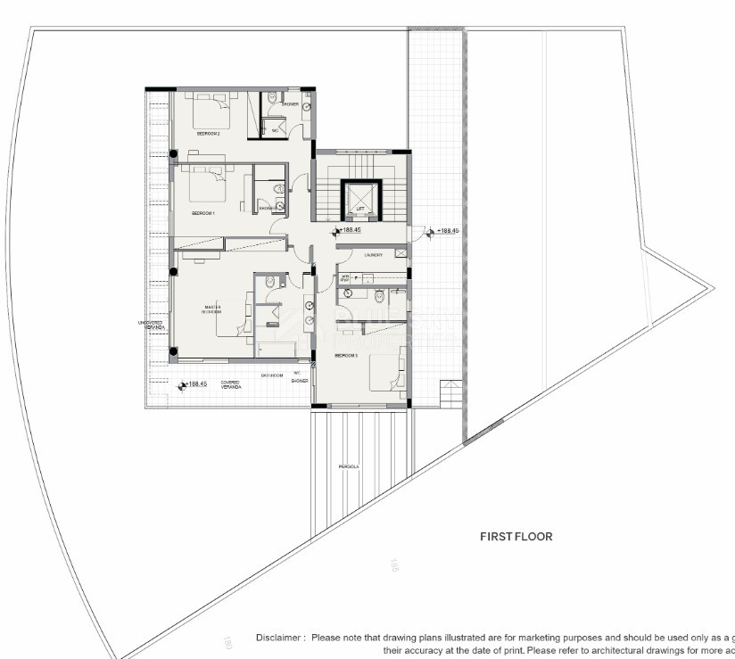
With a total covered area of 579.30 m², the villa unfolds across three meticulously designed levels. Each of the five generously proportioned bedrooms features its own en-suite shower, while the master suite is elevated further with a luxurious en-suite bathroom, creating a private sanctuary of comfort and sophistication.
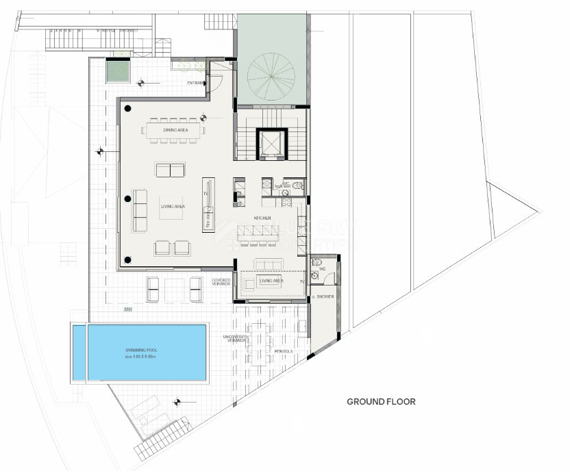
The villa’s interiors are defined by flowing open-plan living and dining spaces, enhanced by natural light and seamless transitions to the outdoor areas. Premium finishes and high-quality materials are used throughout, reflecting timeless luxury and architectural excellence.
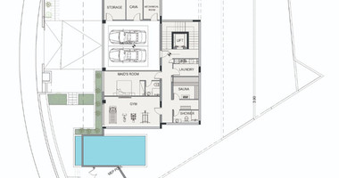
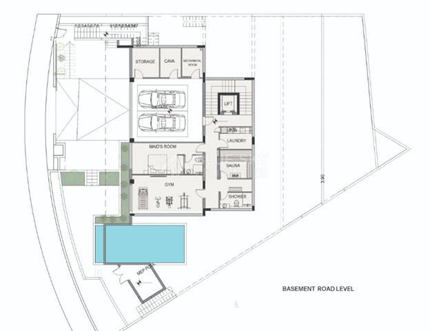
The basement level is dedicated to wellness, leisure, and service functionality, featuring a private gym, sauna, laundry room, and a dedicated maid’s room with en-suite facilities. This level offers the flexibility to support a luxury lifestyle while maintaining complete privacy for the main living areas.
Outdoor living is equally impressive, with extensive covered and uncovered verandas, a private swimming pool, and generous entertainment spaces designed for year-round enjoyment. Practical elements such as covered parking and a separate mechanical room are seamlessly integrated into the design.
Designed to achieve Energy Efficiency Category A, this exceptional residence combines sustainable construction with cutting-edge comfort, ensuring long-term value and reduced operating costs.
This villa represents a rare opportunity to acquire an ultra-luxury family residence or investment property, offering space, elegance, and exclusivity in one of Limassol’s most desirable residential settings.
Key Luxury Features
5 bedrooms, all with en-suite showers
Master bedroom with en-suite bathroom
Dedicated maid’s room (basement)
Private gym and sauna
Spacious laundry room
Private swimming pool
Extensive covered & uncovered verandas
Covered parking
Energy Efficiency Category A
Property Specifications
Bedrooms: 5
Plot Size: 750.00 m²
Total Covered Area: 579.30 m²
Internal Covered Area: 470.95 m²
Levels:
Basement: 138.65 m²
Ground Floor: 164.45 m²
First Floor: 163.20 m²
Covered Verandas / Terraces: 56.75 m²
Ground Floor: 40.75 m²
First Floor: 16.00 m²
Other Covered Areas: 51.60 m²
Covered Parking: 41.50 m²
Covered Mechanical Room: 10.10 m²
Total Uncovered Area: 146.05 m²
Ground Floor Uncovered Verandas: 81.50 m²
First Floor Uncovered Verandas: 64.55 m²
Frequently Asked Questions (FAQ)
Q: Do all bedrooms have en-suite facilities?
A: Yes. All five bedrooms include en-suite shower rooms, with the master bedroom offering a full en-suite bathroom.
Q: Is there accommodation for staff?
A: Yes. The villa includes a dedicated maid’s room with en-suite facilities located in the basement.
Q: Does the property include wellness facilities?
A: Absolutely. The villa features a private gym and sauna, offering a complete in-home wellness experience.
Q: Is there a laundry room?
A: Yes. A separate laundry room is included for maximum convenience and functionality.
Q: Is the swimming pool private?
A: Yes. The villa includes a private swimming pool exclusively for residents.
Q: Is the property energy efficient?
A: The villa is designed to meet Energy Efficiency Category A, ensuring sustainability and lower energy costs.
Q: Is covered parking available?
A: Yes. The property includes covered parking integrated into the design.
Q: Is this property suitable for permanent residence or investment?
A: Yes. The villa is ideal for luxury family living, a second residence, or a high-end investment in Limassol.