An exceptional 5-bedroom off-plan luxury villa set on an elevated, gently sloping plot in the prestigious area of Agios Athanasios, offering unobstructed panoramic views over Limassol from East to West. The property is perfectly positioned to capture the city skyline, the Mediterranean coastline, and spectacular sunset views.
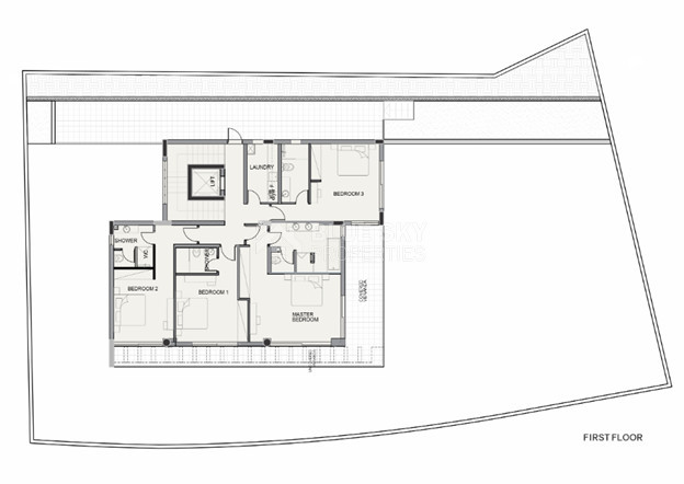
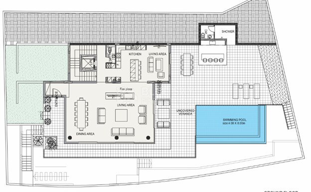
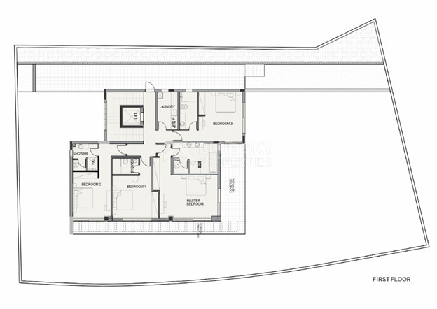
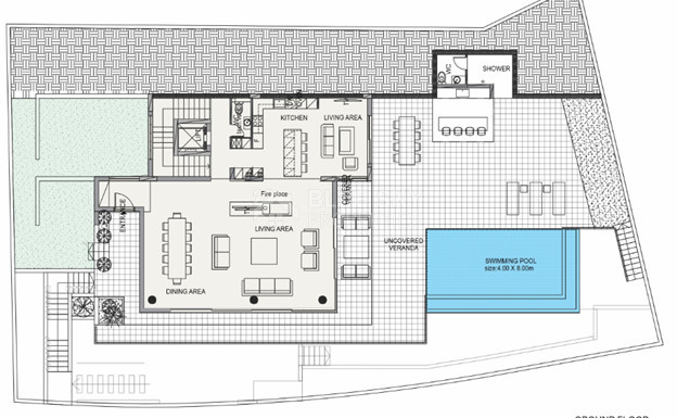
Designed with a contemporary yet highly functional architectural approach, the residence delivers a harmonious balance of elegance, comfort, and privacy. The villa features a generous internal layout with five spacious bedrooms, expansive open-plan living and dining areas, and seamless indoor-outdoor transitions that enhance natural light and everyday living.
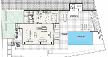
Outdoor areas are thoughtfully designed for relaxation and entertaining, featuring a private swimming pool, extensive landscaped spaces, and large covered verandas ideal for year-round enjoyment. A substantial basement level provides flexible space suitable for a gym, cinema room, guest suite, storage, or other personalized uses.
Constructed using premium materials such as exposed concrete, local stone, and natural wood, the villa reflects timeless quality, durability, and refined modern aesthetics. Designed to achieve Energy Efficiency Category A, the home ensures both environmental responsibility and reduced operating costs.
Ideally located, the property offers immediate access to Limassol city centre, leading public and private schools, medical facilities, and the highway network connecting all major cities. This rare combination of elevated views, prime location, and architectural excellence makes this villa an outstanding opportunity for luxury family living or long-term investment.
Key Property Details
Status: Available
Construction Stage: Off Plan
Location: Agios Athanasios, Limassol
Bedrooms: 5
Plot Size: 750.00 m²
Swimming Pool: Private
Energy Performance: Category A
Area Breakdown
Total Covered Area: 602.95 m²
Internal Covered Area: 487.50 m²
Levels:
Basement: 156.00 m²
Ground Floor: 163.70 m²
First Floor: 162.50 m²
Covered Verandas / Terraces: 63.15 m²
Ground Floor: 46.65 m²
First Floor: 16.50 m²
Other Covered Areas: 52.30 m²
Covered Parking: 43.30 m²
Covered Mechanical Room: 9.00 m²
Total Uncovered Area: 183.05 m²
Ground Floor Uncovered Verandas: 116.40 m²
First Floor Uncovered Verandas: 66.65 m²
Q: Is the villa completed?
A: No, the property is offered off-plan, allowing buyers to benefit from early pricing and customisation opportunities.
Q: Can finishes or layouts be customised?
A: Yes. Depending on the construction stage, buyers may personalise finishes, materials, and certain layout elements.
Q: Does the villa have sea views?
A: Yes. The villa enjoys unobstructed panoramic sea and city views across Limassol.
Q: Is the swimming pool included?
A: Yes, a private swimming pool is included in the design.
Q: Is the property suitable for families?
A: Absolutely. The villa is located near top public and private schools, healthcare facilities, and essential amenities.
Q: What is the advantage of the Agios Athanasios location?
A: Agios Athanasios is one of Limassol’s most sought-after residential areas, known for its elevated views, privacy, and excellent access to the city centre and highway.
Q: Is covered parking available?
A: Yes, the villa includes covered parking within the property.