Occupying the entire top (3rd) floor of a boutique residential development, this 3-bedroom penthouse with a private roof garden offers an exceptional level of space, privacy, and contemporary urban living. As the only penthouse in a building of just five residences, it delivers a truly exclusive lifestyle in one of Limassol’s most desirable central neighborhoods.
Set in Mesa Geitonia, the property enjoys a prime location close to all amenities, including business centers, schools, shops, and major road connections, while remaining within a quiet residential setting—ideal for those seeking both convenience and tranquility.
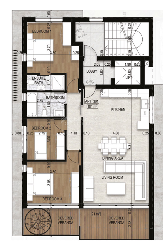
The penthouse features an impressive total covered area of 264 sqm, thoughtfully distributed to maximize comfort and outdoor living. The residence includes 101 sqm of internal covered area, a 28 sqm covered veranda, and a stunning 78 sqm private roof garden, perfect for entertaining, relaxing, or creating an outdoor lounge with panoramic views. Additional space is provided by a 22 sqm private storage area and a 35 sqm share of common areas.
Finished to modern standards, the penthouse benefits from a video phone entrance system, provisions for air-conditioning units (cooling and heating), and provision for electric vehicle charging. Energy efficiency is enhanced through a photovoltaic system serving the common areas and a central water tank with solar panels for hot water. The property also features a pressurized hot and cold water system and direct drinking water supply from the mains to the kitchen tap.
The penthouse includes one covered parking space and represents a rare opportunity to own a spacious top-floor residence with private outdoor areas in the heart of Limassol.
Property Details
Type: 3-Bedroom Penthouse
Floor: Top Floor (3rd Floor)
Status: Off-Plan
Total Covered Area: 264 sqm
Internal Covered Area: 101 sqm
Covered Veranda: 28 sqm
Roof Garden: 78 sqm
Storage Area: 22 sqm
Share of Common Areas: 35 sqm
Parking: 1 Covered Parking Space
Key Features
Exclusive top-floor penthouse
Private roof garden ideal for outdoor living
Boutique development with only 5 apartments
Video phone entrance system
Provision for air-conditioning (cooling & heating)
Provision for electric vehicle charging
Photovoltaic system for common areas
Central water tank with solar panels for hot water
Pressurized hot & cold water system
Direct drinking water supply to kitchen tap
Quiet residential location close to all amenities
Is this the only penthouse in the building?
Yes, this is the only penthouse, occupying the entire top floor of the building.
What outdoor areas does the penthouse offer?
The penthouse includes a 28 sqm covered veranda and a 78 sqm private roof garden, ideal for entertaining and outdoor living.
Does the penthouse include storage space?
Yes, a private storage area of 22 sqm is included.
Is parking included?
Yes, the penthouse comes with one covered parking space.
Is the property offered off-plan?
Yes, the penthouse is offered off-plan, allowing early-stage purchase advantages.
Does the building have security features?
Yes, the building includes a video phone entrance system.
Is air conditioning included?
There is provision for air-conditioning units for cooling and heating.
Is there provision for electric vehicle charging?
Yes, provision for electric car charging is available.
How is hot water supplied?
Hot water is supplied via a central water tank with solar panels, supported by a pressurized water system.
Is drinking water supplied directly from the mains?
Yes, direct drinking water from the mains is supplied to the kitchen tap.
Who is this penthouse suitable for?
It is ideal for families, professionals, or buyers seeking a premium residence with generous indoor and outdoor space in a central Limassol location.