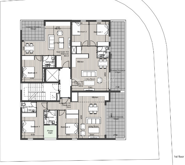
Located in the rapidly developing residential area of Germasogeia, this contemporary 1+1 bedroom apartment offers a perfect blend of comfort, functionality, and modern design. Situated on the 1st floor of a stylish new development, it presents an excellent opportunity for both homeowners and investors seeking long-term value in Limassol.
Thoughtfully designed to maximize space and natural light, this apartment provides a practical layout ideal for modern urban living.
✨ Property Highlights
Type: Apartment
Location: Germasogeia, Limassol
Floor: 1st
Status: Off-plan
Energy Efficiency: Grade A
Apartment Details
Bedrooms: 1 + 1 (ideal as office/guest room)
Bathrooms: 1 Family Bathroom
Total Covered Area: 83 sqm
Internal Area: 62 sqm
Covered Veranda: 21 sqm
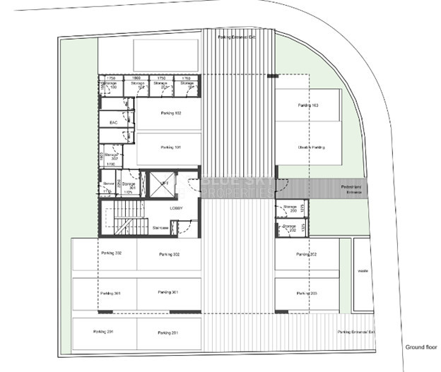
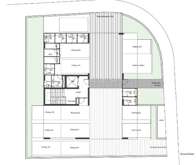
Parking: 1 Covered Parking Space
The spacious veranda extends the living area, offering a perfect spot to relax or entertain while enjoying the surrounding residential atmosphere.
Location Benefits
Conveniently positioned with easy access to:
Main roads and transport links
Shops and supermarkets
Schools and everyday amenities
Business districts
Leisure and lifestyle destinations
This location combines urban accessibility with a peaceful neighborhood feel.
Ideal For
Professionals working in Limassol
Couples or small families
Investors seeking rental income
Buyers looking for a modern, low-maintenance property
Q: What does “1+1 bedroom” mean?
A: It includes one main bedroom plus an additional room that can be used as an office, guest room, or small second bedroom.
Q: Is there parking available?
A: Yes, the apartment includes one covered parking space.
Q: Is the property suitable for investment?
A: Yes, its location in a growing area and modern design make it attractive for both long-term rental and resale.
Q: What outdoor space is included?
A: The apartment features a spacious 21 sqm covered veranda.
Q: When will the project be completed?
A: The development is currently off-plan, with completion expected in July 2028.
Q: Is the apartment energy efficient?
A: Yes, it has an Energy Efficiency Grade A rating, helping reduce electricity costs.